W miarę jak przyjrzymy się różnym elementom projektów fundamentów, omówimy kluczowe symbole, wymiary oraz materiały, które mają znaczenie dla całej konstrukcji. Dzięki temu każdy, kto planuje budowę, będzie miał solidne podstawy do prawidłowego odczytania projektu fundamentów.
Kluczowe informacje:- Dokładna analiza rysunków fundamentów jest niezbędna dla zapewnienia stabilności budowli.
- Ważne jest zrozumienie podstawowych elementów, takich jak fundamenty, ściany i ich funkcje.
- Znajomość kluczowych symboli i oznaczeń w rysunkach ułatwia interpretację projektów.
- Wymiary i poziomy fundamentów mają bezpośredni wpływ na ich nośność i stabilność.
- Właściwy dobór materiałów jest kluczowy dla trwałości i bezpieczeństwa konstrukcji.
- Analiza detali technicznych, takich jak połączenia i wzmocnienia, jest istotna dla prawidłowego wykonania projektu.
- Unikanie typowych błędów w interpretacji projektów fundamentów może zaoszczędzić czas i pieniądze.
Jak skutecznie czytać projekt fundamentów i unikać błędów
Czytanie projektu fundamentów jest kluczowym krokiem w procesie budowy, który może mieć ogromny wpływ na stabilność całej konstrukcji. Właściwe zrozumienie rysunków i dokumentacji technicznej pozwala na uniknięcie kosztownych błędów, które mogą prowadzić do poważnych problemów w przyszłości. Wiele osób, które nie mają doświadczenia w tej dziedzinie, może napotkać trudności w interpretacji projektów, co często prowadzi do nieporozumień i błędnych decyzji.
Ważne jest, aby każdy, kto zajmuje się budową, miał świadomość najczęstszych błędów związanych z odczytywaniem projektów fundamentów. Zrozumienie, jak czytać rysunki, może pomóc w identyfikacji potencjalnych problemów jeszcze przed rozpoczęciem prac budowlanych. W dalszej części artykułu omówimy podstawowe elementy projektów fundamentów oraz ich znaczenie, co pozwoli na lepsze przygotowanie do analizy rysunków i dokumentacji technicznej.
Zrozumienie podstawowych elementów projektu fundamentów i ich znaczenie
Podstawowe elementy projektu fundamentów obejmują takie komponenty jak fundamenty, płyty i ściany. Fundamenty stanowią fundament całej konstrukcji, przenosząc obciążenia na grunt. Płyty fundamentowe, które są często stosowane w budownictwie, zapewniają stabilność i równomierne rozłożenie ciężaru budynku. Ściany fundamentowe natomiast, pełnią istotną rolę w zapewnieniu strukturalnej integralności budowli.
Wszystkie te elementy muszą być odpowiednio zaprojektowane i wykonane, aby zapewnić bezpieczeństwo i trwałość budynku. Niezrozumienie ich funkcji lub błędna interpretacja rysunków może prowadzić do poważnych konsekwencji, takich jak osiadanie budynku czy uszkodzenia strukturalne. Dlatego tak ważne jest, aby każdy, kto pracuje z projektami fundamentów, miał świadomość ich podstawowych elementów oraz ich znaczenia dla całej konstrukcji.Kluczowe symbole i oznaczenia w rysunkach fundamentów
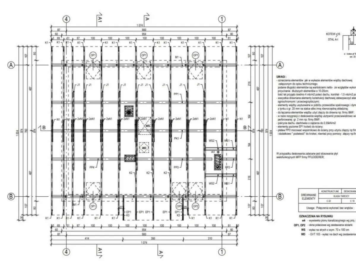
W procesie czytania projektu fundamentów, zrozumienie kluczowych symboli i oznaczeń jest niezwykle istotne. Rysunki fundamentów zawierają różnorodne symbole, które reprezentują różne elementy konstrukcyjne, materiały oraz ich właściwości. Bez znajomości tych oznaczeń, można łatwo popełnić błędy w interpretacji, co może prowadzić do poważnych konsekwencji w trakcie budowy.
Na przykład, symbole używane do oznaczania głębokości fundamentów, typów materiałów czy rodzajów połączeń są standardowe w branży budowlanej. Znajomość ich znaczenia pozwala na lepszą orientację w projekcie i ułatwia komunikację między członkami zespołu budowlanego. W kolejnej części przedstawimy konkretne symbole oraz ich znaczenie, aby umożliwić lepsze zrozumienie rysunków.
Znane symbole i ich znaczenie
| Symbol | Znaczenie | Przykład użycia |
|---|---|---|
| F1 | Fundamenty głębokie | W projektach budynków wielopiętrowych |
| P1 | Płyta fundamentowa | W budynkach jednorodzinnych |
| S1 | Ściana fundamentowa | W projektach domów z piwnicą |
Czytaj więcej: Monter rusztowań w Norwegii: Żadnych złudzeń, ile naprawdę można tam zarobić
Analiza głębokości fundamentów i ich wpływ na budowlę
Głębokość fundamentów jest kluczowym czynnikiem wpływającym na stabilność całej konstrukcji. Odpowiednia głębokość fundamentów zapewnia nośność i stabilność budynku, co jest istotne w kontekście obciążeń, jakie będą na nie oddziaływać. Zbyt płytkie fundamenty mogą prowadzić do ich osiadania, co z kolei może skutkować pęknięciami w ścianach, a nawet całkowitym usunięciem budynku z miejsca. Właściwe zaprojektowanie głębokości fundamentów jest zatem niezbędne, aby uniknąć poważnych problemów w przyszłości.
Warto również zwrócić uwagę na warunki gruntowe, które mają wpływ na głębokość fundamentów. Różne rodzaje gruntów, takie jak glina, piasek czy żwir, wymagają różnych podejść do projektowania fundamentów. Przy ocenie głębokości fundamentów ważne jest, aby przeprowadzić badania geotechniczne, które pomogą określić, jak głęboko należy je wykopać, aby zapewnić odpowiednią stabilność budynku. Ignorowanie tych aspektów może prowadzić do nieodwracalnych szkód.
Rola materiałów w projekcie fundamentów i ich właściwości
Wybór odpowiednich materiałów do budowy fundamentów jest równie istotny, co ich głębokość. Materiały używane w fundamentach, takie jak beton i stal, mają różne właściwości, które wpływają na ich trwałość i nośność. Beton, na przykład, jest materiałem o wysokiej wytrzymałości na ściskanie, co czyni go idealnym do budowy fundamentów. Stal z kolei jest często stosowana do wzmocnień, co zwiększa odporność fundamentów na różne obciążenia.
Właściwości materiałów powinny być dostosowane do specyfiki projektu oraz warunków gruntowych. Na przykład, w obszarach o dużej wilgotności, warto zastosować beton odporny na działanie wody, aby uniknąć degradacji materiału. Dobrze dobrane materiały nie tylko zwiększają trwałość fundamentów, ale także zapewniają bezpieczeństwo całej konstrukcji. Dlatego tak ważne jest, aby przy projektowaniu fundamentów uwzględniać zarówno ich głębokość, jak i rodzaj użytych materiałów.
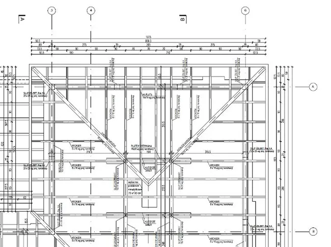
Jak prawidłowo ocenić detale techniczne w projekcie fundamentów
Ocena detali technicznych w projektach fundamentów jest kluczowa dla zapewnienia strukturalnej integralności budynku. Elementy takie jak połączenia, wzmocnienia i materiały użyte w fundamentach mają ogromny wpływ na bezpieczeństwo i trwałość całej konstrukcji. Niewłaściwe zaprojektowanie lub wykonanie tych detali może prowadzić do poważnych problemów, takich jak osiadanie budynku czy pęknięcia w ścianach. Dlatego dokładna analiza tych aspektów jest niezbędna przed rozpoczęciem budowy.
Warto zwrócić uwagę na standardy budowlane oraz zalecenia dotyczące połączeń i wzmocnień. Na przykład, w przypadku fundamentów, stosowanie odpowiednich typów zbrojenia, jak pręty stalowe, jest niezbędne dla zwiększenia nośności. Ocena detali technicznych powinna obejmować również przegląd dokumentacji technicznej, aby upewnić się, że wszystkie elementy są zgodne z projektem oraz normami budowlanymi. Dzięki temu można zminimalizować ryzyko wystąpienia problemów w przyszłości.
Wskazówki dotyczące analizy połączeń i wzmocnień w fundamentach
Analizując połączenia i wzmocnienia w fundamentach, warto stosować kilka kluczowych zasad. Po pierwsze, upewnij się, że wszystkie połączenia są odpowiednio zaprojektowane i wykonane zgodnie z rysunkami technicznymi. Po drugie, zwróć uwagę na materiały używane do wzmocnień – powinny one spełniać określone normy jakości. Regularne kontrole na etapie budowy są również istotne, aby upewnić się, że wszystkie elementy są prawidłowo zamontowane.
- Używaj wysokiej jakości prętów stalowych do wzmocnienia fundamentów, aby zwiększyć ich nośność.
- Sprawdzaj zgodność połączeń z dokumentacją techniczną na każdym etapie budowy.
- Regularnie przeprowadzaj inspekcje, aby upewnić się, że wszystkie elementy są poprawnie zamontowane i zgodne z projektem.

Przykłady typowych błędów w interpretacji projektów fundamentów
Podczas czytania projektów fundamentów łatwo można popełnić błędy, które mogą prowadzić do poważnych problemów budowlanych. Jednym z najczęstszych błędów jest niewłaściwe zrozumienie głębokości fundamentów. Na przykład, jeśli projekt przewiduje fundamenty na głębokości 1,5 metra, a wykonawca zdecyduje się na głębokość 1 metra z powodu oszczędności, może to skutkować osiedlaniem się budynku oraz pęknięciami w ścianach. Ignorowanie wskazówek zawartych w dokumentacji może prowadzić do katastrofalnych skutków.
Kolejnym powszechnym błędem jest pomijanie szczegółów dotyczących materiałów używanych w fundamentach. Na przykład, jeśli projekt wymaga zastosowania betonu o wysokiej wytrzymałości, a wykonawca użyje zwykłego betonu, może to prowadzić do niewystarczającej nośności fundamentów. Właściwe materiały są kluczowe dla stabilności budynku, a ich niewłaściwy wybór może skutkować poważnymi konsekwencjami. Dlatego tak ważne jest, aby dokładnie przestrzegać wytycznych zawartych w projektach.
Nowoczesne technologie w analizie projektów fundamentów
W dzisiejszych czasach, nowoczesne technologie znacząco zmieniają sposób, w jaki analizujemy projekty fundamentów. Narzędzia takie jak modelowanie informacji o budynku (BIM) pozwalają na dokładne odwzorowanie wszystkich elementów konstrukcji, co ułatwia identyfikację potencjalnych problemów jeszcze przed rozpoczęciem budowy. Dzięki BIM, inżynierowie mogą wprowadzać zmiany w czasie rzeczywistym, co minimalizuje ryzyko błędów związanych z interpretacją rysunków.
Dodatkowo, technologie skanowania 3D oraz drony stają się coraz bardziej popularne w inspekcji i ocenie istniejących fundamentów. Te zaawansowane metody umożliwiają dokładne pomiary oraz analizę stanu technicznego obiektów, co pozwala na szybsze i bardziej precyzyjne podejmowanie decyzji związanych z ewentualnymi naprawami czy modernizacjami. Wykorzystanie tych technologii nie tylko zwiększa efektywność, ale również poprawia bezpieczeństwo budowy, co jest kluczowe w kontekście stabilności i trwałości konstrukcji.




