
Wybierz odpowiednie bloczki na fundament B15 czy B20, aby zaoszczędzić na budowie. Sprawdź ich wytrzymałość i zastosowanie w różnych projektach.

Wybierz odpowiednie bloczki na fundament B15 czy B20, aby zaoszczędzić na budowie. Sprawdź ich wytrzymałość i zastosowanie w różnych projektach.

Ile kosztują fundamenty pod dom 140m2? Sprawdź ceny oraz czynniki wpływające na koszty budowy, aby lepiej zaplanować swój budżet.

Wykończenie fundamentu domu to kluczowy etap budowy. Dowiedz się, jak wykonać to skutecznie, wybierając najlepsze techniki i materiały.

Oblicz dokładnie, ile drutu na fundament potrzebujesz, aby uniknąć strat. Sprawdź nasze metody i narzędzia, które ułatwią Ci to zadanie!

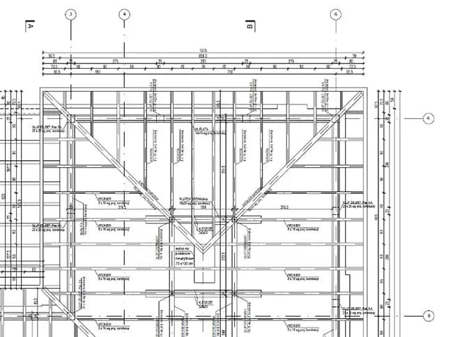
Jak czytać projekt fundamentów, aby uniknąć typowych błędów? Zrozum kluczowe elementy i symbole, które zapewnią stabilność Twojej budowli.

Wybierz odpowiednie strzemiona na fundament, aby zapewnić trwałość i bezpieczeństwo swojej konstrukcji. Sprawdź, jakie strzemiona najlepiej pasują do Twojego projektu.

Wybór odpowiedniego zbrojenia na fundamenty jest kluczowy dla trwałości budynku. Dowiedz się, jakie zbrojenie wybrać, aby uniknąć problemów budowlanych.

Wybierz odpowiedni fundament pod ogrodzenie, aby zapewnić mu stabilność i trwałość. Sprawdź, jakie fundamenty będą najlepsze dla Twojego projektu.

Jak głęboko fundamenty? Dowiedz się, jakie czynniki wpływają na głębokość fundamentów i jak dostosować je do warunków gruntowych oraz klimatycznych.

Dowiedz się, jak głęboki fundament pod ogrodzenie jest potrzebny dla różnych typów ogrodzeń. Sprawdź kluczowe wskazówki i zapewnij stabilność swojej konstrukcji!